Moderna Moradia Térrea
na Avenida Barbosa du Bocage
Areias – Montijo

Imagine viver numa moradia térrea que combina design moderno, acabamentos de excelência e a possibilidade de personalizar o seu espaço exterior ao seu gosto.

Localizada no Montijo, a poucos minutos de Lisboa, esta futura construção oferece-lhe o equilíbrio perfeito entre tranquilidade e proximidade da cidade, com acessos rápidos à capital e a todas as comodidades da região. O projeto permite-lhe escolher entre um jardim privado ou uma piscina exclusiva para momentos inesquecíveis de lazer.

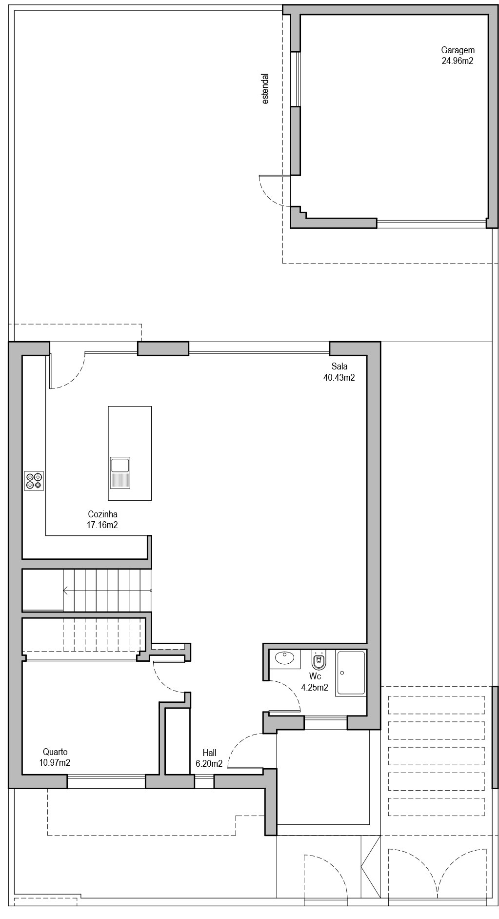
No interior, os espaços foram pensados para proporcionar funcionalidade, luz natural e conforto, com uma cozinha moderna em open space, sala ampla, quartos com roupeiros embutidos e uma suíte principal com casa de banho privativa. Cada detalhe será cuidadosamente executado para refletir acabamentos fantásticos e um estilo sofisticado, resultando numa casa única, feita à sua medida.

Se procura conforto, modernidade e personalização, esta é a oportunidade ideal para criar o seu novo lar de sonho antes mesmo da sua conclusão.

Contacte-nos e descubra como pode transformar este projeto numa realidade à sua medida, numa localização privilegiada perto de Lisboa.

Para mais informações não hesite em contactar-nos.

Tel: 919 942 329






    A Mavepa Construções pretende continuar a prestar-lhe um serviço personalizado e, ao mesmo tempo, compromete-se a garantir a total privacidade dos seus dados, pelo que asseguramos que os mesmos, não são, em circunstância alguma, partilhados com terceiros, e apenas serão utilizados para responder ao seu pedido de contacto/informações.

    * obrigatório